O que é um Projeto de Instalações Hidráulicas ?

Projeto de Instalações Hidráulicas

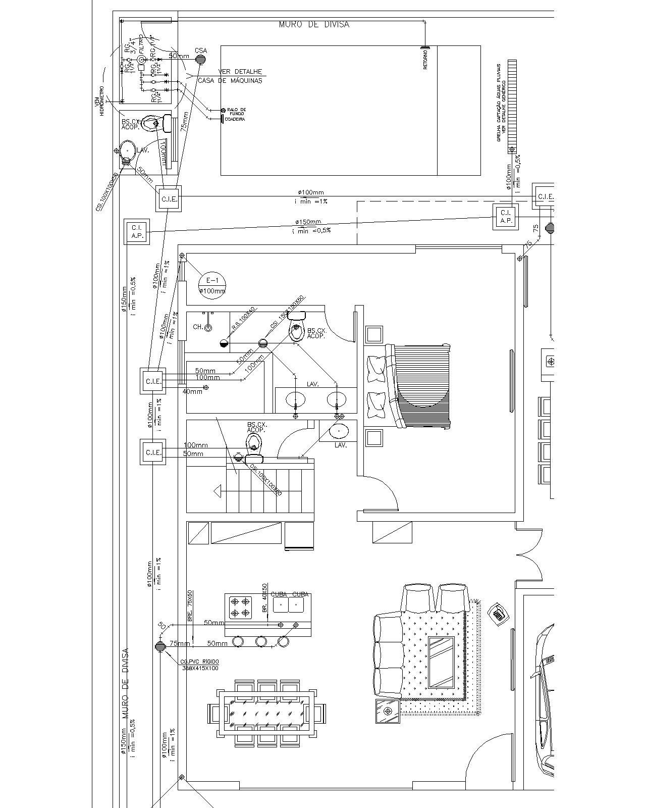
A planta geral da instalações hidráulicas mostra o conjunto de ramificações do encanamento e os lugares por onde passam estas tubulações, com tamanhos e outros detalhes.
 
O projeto comtempla:
- Água Fria Potável
- Água Quente Potável
- Águas Pluviais (água de chuva)
- Esgoto
 
Para simplificar, vamos chamar de encanamento vários dutos condutores responsáveis pela distribuição de não apenas água fria e quente, ramais de coleta de esgoto e águas pluviais.
Se você pretende mudar uma parede, fazer um buraco para uma nova porta, colocar uma prateleira ou ainda consertar um vazamento interno de uma parede, você tem de ter em mãos a planta geral de instalação hidráulica, por vários motivos:
 
-Localizar a passagem dos canos, e quais;
 
-Identificar qual é o registro que fechará a água ou qual a caixa onde se desconecta um determinado cômodo;
 
-Identificar quais as ramificações que ficarão à seco (banheiros, cozinha, etc.) ou no escuro caso o conserto leve tempo.
 
Um aspecto muito importante para se levar em conta é a pressão da água na rua.
Quando a pressão da água é muito baixa, acaba levando tempo demais para encher a caixa d’água.
Isso acarreta desde a escassez da água em casa ao mau funcionamento de chuveiros (com pingos ao invés de jatos), lavadoras de roupa (demoram para encher) e de louça (demora para completar sua função).
Em contrapartida, se a pressão é demasiadamente alta, a tubulação deverá ser mais larga e com conexões bem mais fortes.
A saída é instalar dispositivos que controlam esses extremos de pressão.